0
Doorgaan naar inhoud
Home
Aanbod
Portfolio
Blog
Over
Contact
Menu openen
Menu sluiten
Home
Aanbod
Portfolio
Blog
Over
Contact
Menu openen
Menu sluiten
Home
Aanbod
Portfolio
Blog
Over
Contact
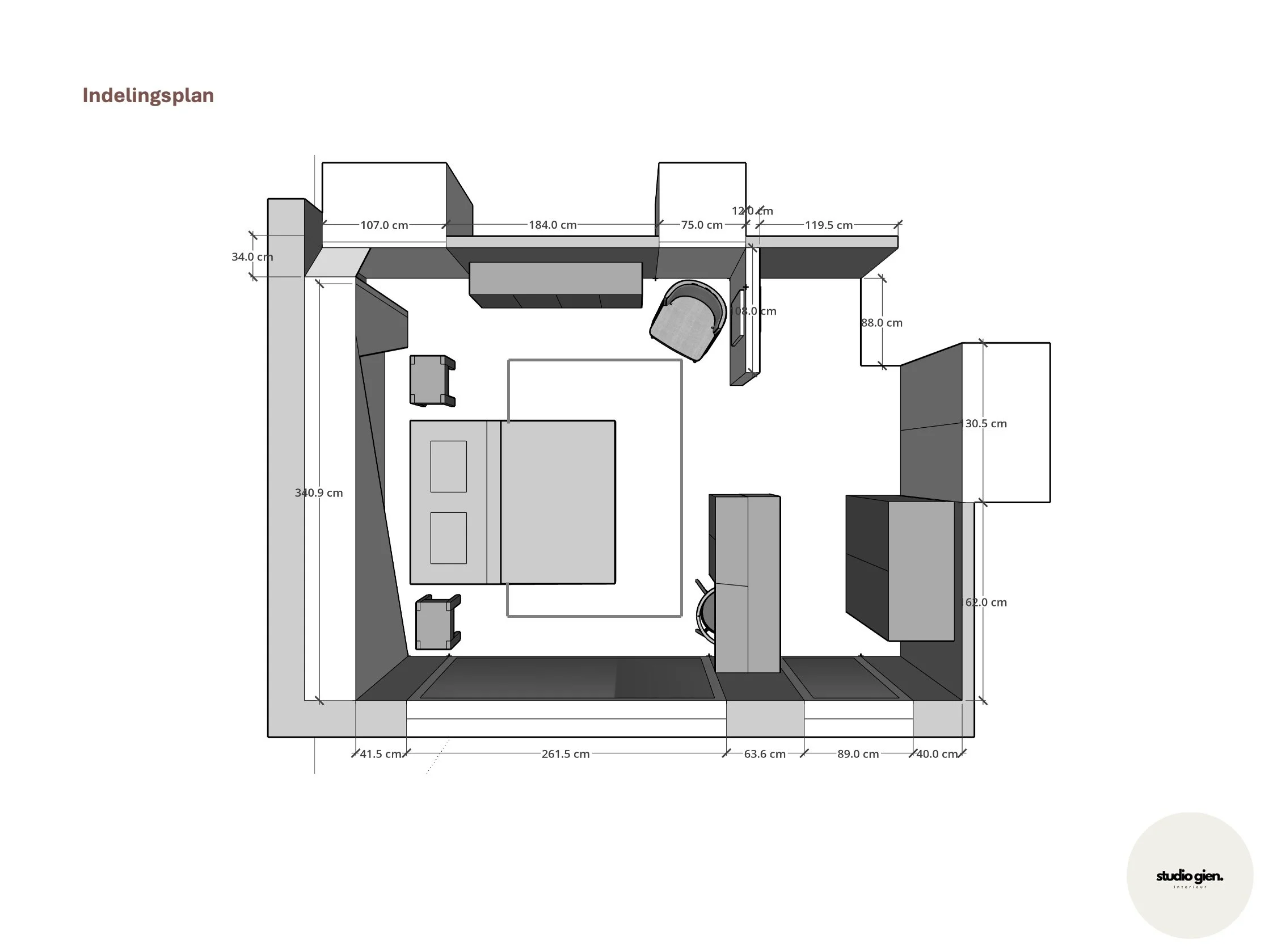
Project Prinsenbeek
Vorige
Vorige
Project Driebergen
Volgende
Volgende
Project binnenstad Vianen